Karta lokalu

S4.2.05

Koszty dodatkowe

Udział w drodze osiedlowej
2200 zł (brutto)

Koszty rodzajowe

Zgodnie z art. 19a ust. 1 pkt 3 Ustawy Deweloperskiej, w przypadku zgłoszenia przez nabywcę wykonania zmian lokatorskich w lokalu mieszkalnym, deweloper pobiera zwrot kosztów poniesionych z tytułu wykonania takich prac na rzecz nabywcy lokalu mieszkalnego

Zgodnie z art. 19a ust. 1 pkt 3 Ustawy o Jawności Cen, deweloper pobiera zwrot opłat z tytułu przekształcenia prawa użytkowania wieczystego w prawo własności

Zgodnie z art. 19a ust. 1 pkt 3 Ustawy o Jawności Cen, jeżeli deweloper będzie czasowo pełnił rolę zarządcy – opłaty eksploatacyjne rozumiane jako koszty związane z utrzymaniem i bieżącym użytkowaniem nieruchomości w zakresie części wspólnych oraz dotyczące lokalu: koszty energii elektrycznej, koszty wody ciepłej i zimnej, koszty ogrzewania centralnego, kontener na odpady, wywóz śmieci i sprzątanie)

Budynek A
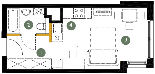
Lokal
S4.2.05
Część
A
Piętro
2
Liczba pokoi
1
Powierzchnia
25.13 m2
Cena za m2 brutto
11099 zł/m2
Cena całkowita brutto
278917.87 zł
Dostępne od 11-07-2025.
Format: dd-mm-rrrr.

Udział w drodze osiedlowej:
2200 zł

Ściany konstrukcyjne

Powierzchnia pod ścianami działowymi (nie płacisz za nią)

Formularz kontaktowy

    Jestem zainteresowany

    pokojami

    Wysyłając formularz kontaktowy udzielasz zgody na przetwarzanie zawartych w nim danych osobowych w celu odpowiedzi na Twoje zapytanie w ramach którego przedstawiona zostanie Ci przygotowana specjalnie dla Ciebie oferta w oparciu o treść Twojego zapytania. Podmiotem przetwarzającym dane jest Tree Development Group sp. z o.o. Management sp. k. z siedzibą w Warszawie oraz spółki inwestycyjne z grupy Tree Development Group ROZWIŃ

    Dodatkowo, chcę być na bieżąco informowany o promocjach, rabatach, wydarzeniach i nowościach: oferowanych przez Tree Development Group sp. z o.o. Management sp. k. oraz spółki inwestycyjne z grupy Tree Development Group*, na podane przeze mnie dane kontaktowe:

    Udzielenie powyższych zgód jest dobrowolne. Pamiętaj jednak, że jej udzielenie pozwoli Ci być na bieżąco z naszą ofertą, promocjami i wydarzeniami. Pamiętaj też, że możesz z łatwością cofnąć każdą zgodę w dowolnym momencie. ROZWIŃ

    Aby to zrobić napisz do nas: marketing@treedevelopment.com. Administratorem Twoich danych osobowych jest Tree Development Group sp. z o.o. Management sp. k. z siedzibą w Warszawie, ul. Senatorska 2, 00-075 Warszawa. „Spółki inwestycyjne z grupy Tree Development Group” oznaczają podmioty powiązane kapitałowo, powołane w celu realizacji inwestycji i sprzedaży nieruchomości klientom indywidualnym. Pełna oraz aktualna lista takich podmiotów znajduje się TUTAJ. Więcej informacji na temat przetwarzania danych osobowych znajdziesz w Polityce Prywatnoścі.

    Biuro sprzedaży

    Tymienieckiego 30a
    90-350 Łódź
    Bezpłatny parking przed biurem
    (zabytkowy budynek straży pożarnej)

    Czynne

    Pon. – Pt.: 8:00 – 18:00
    Sobota: wcześniej umówione spotkanie

    Biuro sprzedaży na inwestycji

    Zgierska 188
    91-355 Łódź
    Wjazd od ul. Kruszynowej

    Czynne

    Pon.-Wt. i Czw.-Pt.: 9:00-17:00